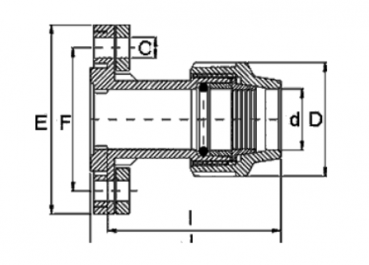
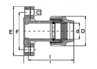
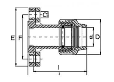
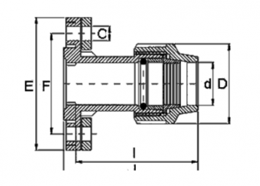
Klemmfittinge

Klemmfittinge




DELTONE ist der neue Klemmverbinder / Klemmfitting von Unidelta für die Durchmesser 63, 75, 90 und 110 mm.
 
Druckring, Klemmring und Überwurfmutter stellen ein einziges, integriertes Bauteil dar.

Ihr Vorteil:
 
- weniger Zeit für die Montage des Klemmfittings erforderlich 
- leichtere Montage auch in nicht optimalen Arbeitssituationen 
- einsetzvorgang bleibt sichtbar 
- perfekte hydraulische und mechanische Dichtigkeit 




 

 

233 bis 240 (von insgesamt 285)